緑化ルーフN

駐輪場が緑豊かな景観に様変わり。緑化トレーを屋根上に設置したECOルーフ。

  • 緑化型駐輪場屋根:緑化ルーフN。駐輪場が緑豊かな景観に変わります。
  • 緑化型駐輪場屋根:緑化ルーフNを上からみた写真。
  • 屋根上に設置する緑化トレー。

特徴

  • 緑化面積への算入が可能です。*1
  • 潅水システム不要で、導入・運用コストを大幅に削減します。
  • 乾燥、暑さ寒さ、湿潤にも強く1 年中緑を保つ植生です。
  • 1 年間の無償自主メンテナンス、3 年枯れ保証つき。*2
  • 雨音抑制、屋根温度緩和、CO2 削減にも役立ちます。

*1:各自治体によって運用・規定は異なります。
*2:納品場所によっては無償自主点検をご提供できない場合があります。

図面(CADデータ)、カタログデータのダウンロード

  • 緑化型駐輪場屋根:緑化ルーフNの駐輪場平面図。
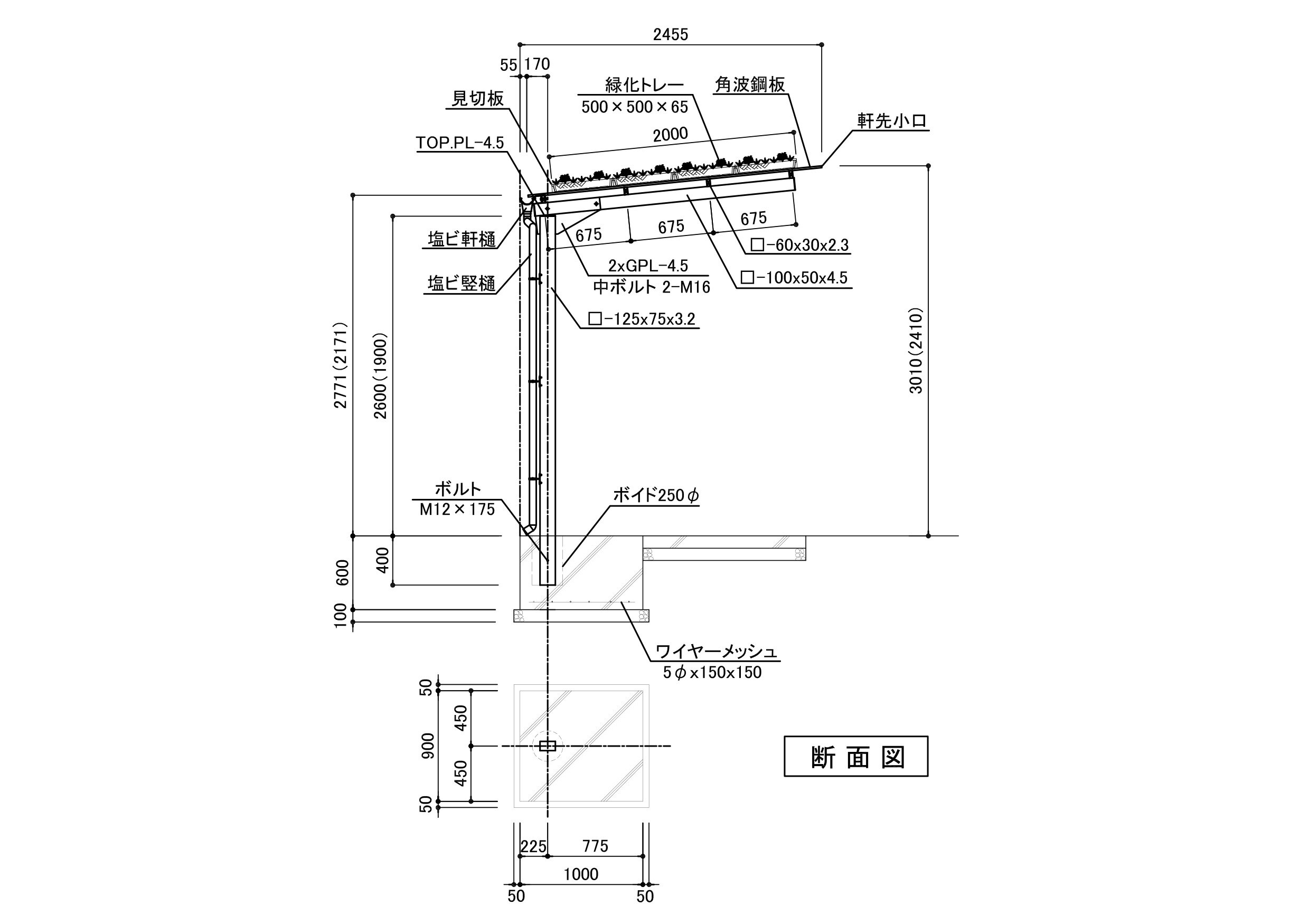
  • 緑化型駐輪場屋根:緑化ルーフNの駐輪場断面図。
  • 緑化型駐輪場屋根:緑化ルーフNの駐輪場立面図。

製品の選定にお悩みの方は、私たちにご相談ください。
お客様の課題(設置台数や設置環境)に合わせた最適な製品をご提案いたします。

お問い合わせ / 資料請求

設置条件(駐輪場 寸法)

【基本寸法】
柱間隔 : 2400mm
高 さ : 1900mm (2段式用 H2500mm)
奥 行 : 2400mm

・各寸法は変更可能。

価格

この製品の価格はお問合わせください。

積雪荷重

600N/㎡(積雪30cm)

カラー

屋根(上面) アイボリー / グレー / 新茶
屋根(下面) ベージュ
鉄骨     アイボリー / グレー / 新茶
雨樋     ライトグレー/グレー/新茶

仕様

名称 仕様
屋根材 ガルバリウム角波鋼板 t0.5
不燃認定番号:NM-8697
軒先・妻 鋼板折曲加工
t3.2 □125×75
t4.5 □100×50
母屋 t2.3 □60×30
軒樋 / 堅樋 塩ビ100 / 塩ビΦ55
緑化トレー用
見切り金物、端部金物
ZAM材
緑化植物 タケシマキリンソウ

その他製品

現地調査、見積依頼、製品について、カタログ請求など、お気軽にご相談ください。

お問い合わせ / 資料請求