BC-K-Y

1本の柱で両側に自転車収容可能。施工性抜群。コストパフォーマンスに優れた駐輪場屋根。屋根材には、耐久性に優れ、錆びにくいガルバリウム鋼板を使用。

特徴

  • 1本の柱で両側に自転車を収容可能な駐輪場屋根。
  • 屋根材には、耐久性に優れ、錆びにくいガルバリウム鋼板を使用。

図面(CADデータ)、カタログデータのダウンロード

  • 駐輪場屋根:BC-K-Yの駐輪場平面図。
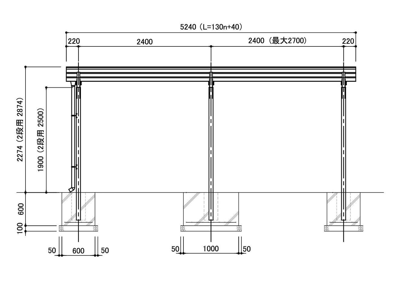
  • 駐輪場屋根:BC-K-Yの駐輪場断面図。
  • 駐輪場屋根:BC-K-Yの駐輪場立面図。

製品の選定にお悩みの方は、私たちにご相談ください。
お客様の課題(設置台数や設置環境)に合わせた最適な製品をご提案いたします。

お問い合わせ / 資料請求

設置条件(駐輪場 寸法)

【基本寸法】
柱間隔 : 2400mm (最大2700mm)
高 さ : 1900mm (2段式用 2500mm)
奥 行 : 4000mm (最大4800mm)

・各寸法は、変更可能。

価格

基本1スパン:422,000円
追加1スパン:292,000円

  • 基本寸法の価格になります。2段式用など基本寸法外の価格はお問い合わせください。
  • 図面は2スパン:422,000+292,000=714,000円
  • 運搬費・組立費・基礎工事費別途。

積雪荷重

積雪荷重 : 600N/㎡(積雪30cm)

【積雪対応型屋根】
900N/㎡(積雪45cm)
1200N/㎡(積雪60cm)
の2種類の積雪対応型タイプもあります。

カラー

屋根(上面) アイボリー / グレー / 新茶
屋根(下面) ベージュ
鉄骨     アイボリー / グレー / 新茶
雨樋     ライトグレー / グレー / 新茶

この製品の実績

大森駅水神口自転車等駐車場
草加市商業施設 駐輪場
竹ノ塚駅民間駐輪場
市川市某マンション
小金井市某マンション

この製品の課題解決事例

仕様

名称 仕様
屋根材 ガルバリウム角波鋼板 t0.5 不燃材
不燃認定番号 NM-8697
軒先・妻 鋼板折曲加工
t3.2 □125×75
t2.3 □100×50
母屋 t3.2 □60×30
軒樋 / 堅樋 塩ビ100 / 塩ビΦ55
支柱・鉄骨部 仕上げ ポリエステル樹脂系粉体塗装

よくあるご質問

寸法の変更は可能ですか。
次の範囲内を基本として変更可能です。W 130mm刻み ※全長130n+40 / D 200mm刻み(~4800mm) ※柱は中央に配置 / スパン 10mm刻み(~2700mm) / 跳出し 10mm刻み(100~500mm)
積雪に対応していますか。
通常品600N仕様の他、900N仕様、1200N仕様がございます。1200Nを超える強度が必要な場合、個別に対応しますのでお問合せ下さい。

その他製品

現地調査、見積依頼、製品について、カタログ請求など、お気軽にご相談ください。

お問い合わせ / 資料請求